Exclusivité PANDORA Immobilier. CRETEIL face CHU Henri Mondor, c’est dans une résidence récente de 2005 de très bon standing et parfaitement entretenue, située à 8 minutes à pieds de l'église, du centre-ville et du métro ligne 8 "Echat" que nous vous proposons cet agréable appartement.
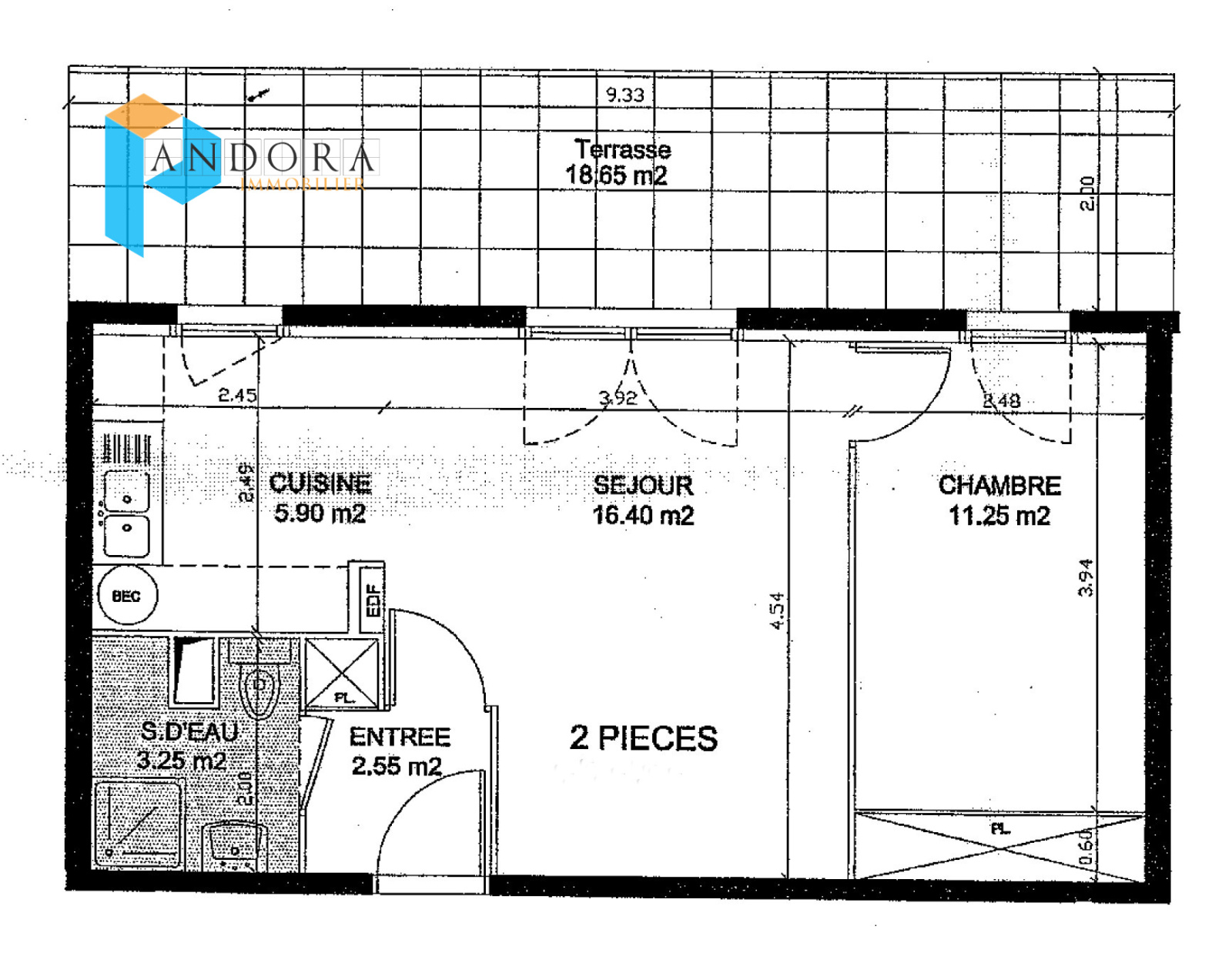
Ce 2 pièces de 40 m² situé en étage avec ascenseur saura vous ravir par sa terrasse et sa vue dégagée. Celui-ci se compose d’ une entrée avec placard, séjour avec cuisine US équipée ouvrant sur une terrasse de 20 m² avec vue dégagée exposée Nord / Ouest, une belle chambre avec penderie, salle d'eau avec WC.
Une place de parking en sous-sol vient agrémenter l'ensemble. Appartement ultra lumineux et en excellent état.
Copropriété de 90 lots sans difficulté financière.
Charges annuelles courantes de 1400 euros (chauffage et eau chaude individuels électrique)
Les informations sur les risques auxquels ce bien est exposé sont disponibles sur le site Géorisques : www. georisques.gouv.fr
Les honoraires sont à la charge du vendeur pour un montant de 3% ttc du prix de vente.
PANDORA Immobilier, le savoir-faire a enfin un prix équitable.
